
Intelligente net- en overdrachtsstation
HKP-E-Ü
Het perfecte station voor het
»smart grid« van de toekomst
Vervaardigd uit lichtbeton of normaal beton
Vervaardigd volgens IEC 62271-202 (VDE 0670-202)
Geleverd met complete, aansluitklare elektrotechnische uitrusting
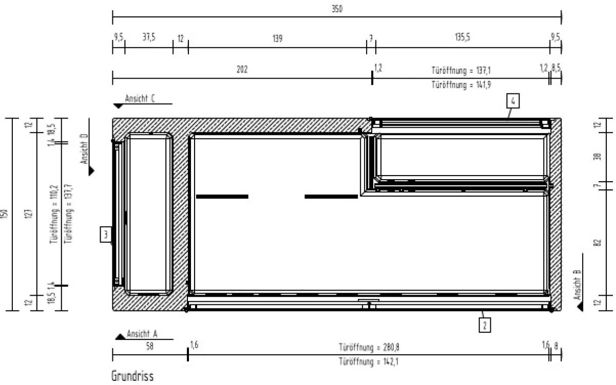
Specificaties
- Stationsafmetingen:
- 350 x 150 x 257,5 cm
- Middenspanningsschakelaar:
- max. 8 vakken / 270 x 140 x 90 cm / meting voor facturering mogelijk
- FW-ruimte:
- 130 x 105 x 35 cm
- Meterruimte:
- 140 x 140 x 35 cm
- Gewicht:
- Lichtbeton: 8,0 t leeg, 9,4 t met installatie
- Hijsankers dak:
- 4 x RD 20
- Hijsankers station:
- 4 x SL 42
*) Getest op boogontladingen of het is mogelijk om de resultaten van uitgevoerde boogontladingstests op te vragen.

Dit zou je ook kunnen interesseren
Meer compacte stations




GKP-S3
Het milieubewuste SF6 loze concept van een universeel net- en overdrachtsstation voor maximaal 630 kVA trafovermogen.







