
Het intelligente distributie en overdrachtsstation
HKP-E
Het perfecte station voor de
»Smart-Grid« van de toekomst
Vervaardigd uit normaal- of lichtbeton
Uitvoering conform IEC 62271-202 (VDE 0670-202)
Geschikt voor het opstellen van transformatoren tot 630 kVA
Geheel geïnstalleerd en aansluitgereed afgeleverd op de bouwplaats
Specificaties
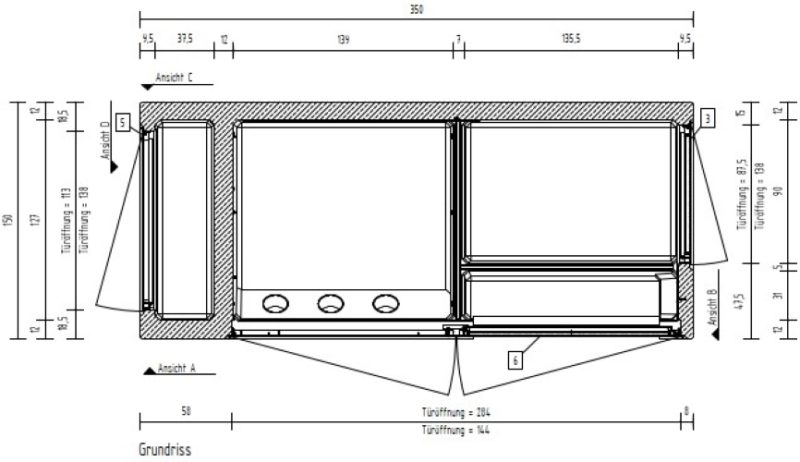
- Stationsafmetingen:
- 350 x 150 x 257,5 cm (lxbxh)
- Transformator:
- Max 630 kVA (max. afmetingen 125 x 85 x 160 cm)
- Middenspanningsschakelaar:
- Max 4 velden (140 x 140 x 80 cm)
- Laagspanningsverdeling:
- max. 120 x 140 x 32 cm / Max. 12 laagspanningsvelden
- Gewicht:
- Lichtbeton 7,8 ton leeg en 11,4 ton met installatie
- Hijsankers dak:
- 4 x RD 20
- Hijsankers Station:
- 4 x SL 42
*) Getest op boogontladingen of het is mogelijk om de resultaten van uitgevoerde boogontladingstests op te vragen.

Dit zou je ook kunnen interesseren
Meer compacte stations




GKP-S3
Het milieubewuste SF6 loze concept van een universeel net- en overdrachtsstation voor maximaal 630 kVA trafovermogen.



HKP-E-Ü
Het perfecte overdrachtsstation met veel ruimte voor beveiligings- en telebesturingsapparatuur voor het »smart grid« van de toekomst.




