
Lichtbeton
Compactstation GKP-S4
Compactstation met geteste SF6-gasvrije schakelinrichting
Vervaardigd uit licht- of normaal beton
Conform IEC 62271-202 (VDE 0670-202)
Geschikt voor transformatoren tot 1.000 kVA
Geheel geïnstalleerd en aansluit gereed afgeleverd op de bouwplaats
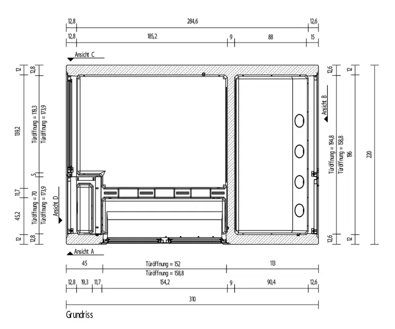
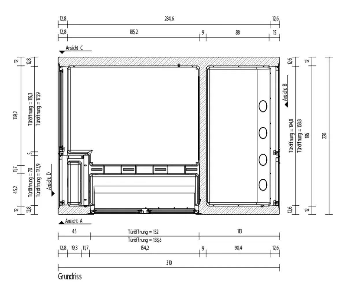
Specificaties
- Stationsafmetingen:
- 310 × 220 × 284 cm (+ 9 cm dakoverstek)
- Transformator:
- geschikt tot 1.000 kVA, max. 170 × 110 × 180 cm
- Middenspanningsschakelaar:
- max. 4 velden, 160 × 170 × 85 cm
- Laagspanningsverdeling:
- max. 150 × 170 × 40 cm, tot 15 NS-stroken
- Telemetriesectie:
- max. 60 × 150 × 32 cm
- Gewicht:
- 9,8 ton (zonder elektrische installatie), 14,4 ton (met installatie)
- Hijsankers dak:
- 4 × RD 20
- Hijsankers Station:
- 4 × RD 42
*) Getest op boogontladingen of mogelijk om de resultaten van uitgevoerde boogontladingstests op te vragen.

Dit zou je ook kunnen interesseren
Meer compacte stations




GKP-S3
Het milieubewuste SF6 loze concept van een universeel net- en overdrachtsstation voor maximaal 630 kVA trafovermogen.



HKP-E-Ü
Het perfecte overdrachtsstation met veel ruimte voor beveiligings- en telebesturingsapparatuur voor het »smart grid« van de toekomst.




