
Lichtbeton
Compactstation GBÜ 1600
Het veelzijdig inzetbare en ruimtebesparende distributie – en overdracht/verdeelstation
Vervaardigd uit lichtbeton of normaal beton
Productie volgens IEC 62271-202 (VDE 0670-202)
Geschikt voor uitrusting met transformatoren tot 1.600 kVA
Getest op storingslichtbogen* met SF6-vrije middenspanningsschakelsystemen, zoals: Siemens 8DJH24 blue GIS, Eaton Xiria
Geheel geïnstalleerd en aansluit gereed afgeleverd op de bouwplaats
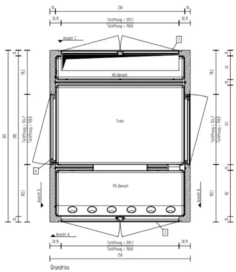
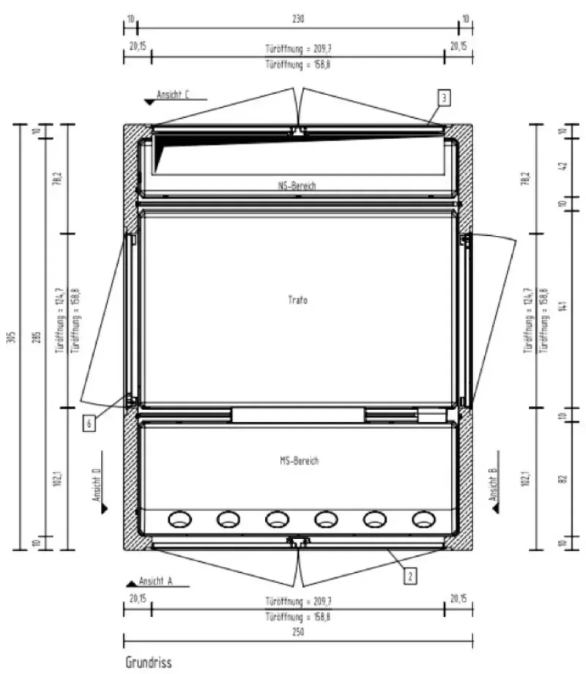
**Specificaties**
- Stationsafmetingen:
- 305 × 250 × 266 cm (lxbxh)
- Transformator:
- tot 1.600 kVA
- Middenspanningsschakelaar:
- max. 6 velden, 195 × 165 × 80 cm
- Laagspanningsverdeling:
- max. 210 × 160 × 35 cm, tot 20 verdelerstroken, verrekeningsmeting mogelijk
- Gewicht:
- Lichtbeton leeg 8,1 ton en ca. 14 ton met installatie
- Hijsankers dak:
- 4 × RD 20
- Hijsankers Station:
- 4 × RD 42
Dit zou je ook kunnen interesseren
Meer compacte stations



GKP-S3
Het milieubewuste SF6 loze concept van een universeel net- en overdrachtsstation voor maximaal 630 kVA trafovermogen.




HKP-E-Ü
Het perfecte overdrachtsstation met veel ruimte voor beveiligings- en telebesturingsapparatuur voor het »smart grid« van de toekomst.




