
Lichtbeton
Compactstation GKP-S5
Compactstation met geteste SF6-gasvrije schakelinrichting
Uitvoering in lichtbeton of normaal beton
Productie volgens IEC 62271-202 (VDE 0670-202)
Geschikt voor toepassing met transformatoren tot 1.000 kVA
Getest op storingslichtbogen* met SF6-vrije middenspanningsschakelaars, bijvoorbeeld: Siemens 8DJH24 blue GIS, Schneider Electric RM AirSeT, ABB SafeRing Air / SafePlus Air
Geheel geïnstalleerd en aansluit gereed afgeleverd op de bouwplaats
Specificaties
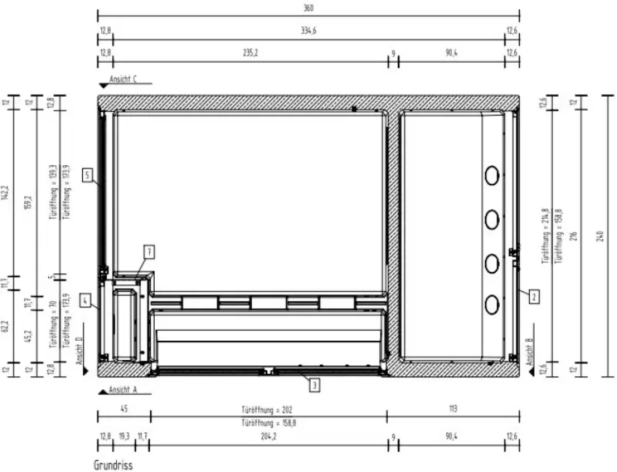
- Stationsafmetingen:
- 360 × 240 × 284 cm (plus 9 cm dakoverstek)
- Transformator:
- tot 1.000 kVA / max. 200 × 130 × 180 cm (L/B/H)
- Middenspanningsschakelaar:
- max. 5 velden / 190 × 170 × 85 cm (B/H/D)
- Laagspanningsverdeling:
- max. 200 × 170 × 40 cm (B/H/D) / max. 20 NS-stroken
- Telemetriesectie:
- max. 60 × 150 × 32 cm (B/H/D)
- Gewicht:
- Lichtbeton: 11,6 ton zonder elektrische uitrusting, 17,4 ton met elektrische uitrusting
- Hijspunten dak:
- 4 × RD 20
- Hijsankers Station:
- 4 × RD 42
*) Getest op boogontladingen of mogelijk om de resultaten van uitgevoerde boogontladingstests op te vragen.
Dit zou je ook kunnen interesseren
Meer compacte stations




GKP-S3
Het milieubewuste SF6 loze concept van een universeel net- en overdrachtsstation voor maximaal 630 kVA trafovermogen.



HKP-E-Ü
Het perfecte overdrachtsstation met veel ruimte voor beveiligings- en telebesturingsapparatuur voor het »smart grid« van de toekomst.




