
Mastvoet
Compactstation MKP
De reeks van stations
met een hoge mate van veiligheid
Vervaardigd uit lichtbeton of normaal beton
Uitvoering conform IEC 62271-202 (VDE 0670-202)
Geschikt voor uitrusting met transformatoren tot 630 kVA
Levering met complete, aansluitklare elektrotechnische uitrusting
Specificaties
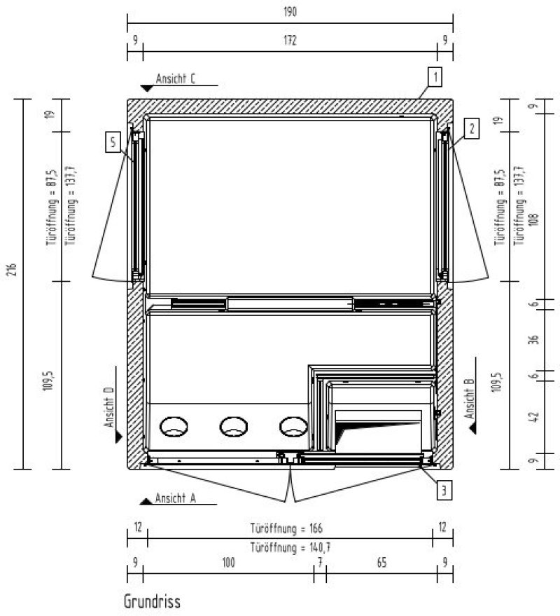
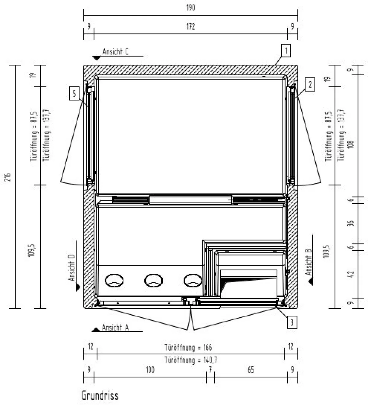
- Stationsafmetingen:
- 216 x 190 x 259,5 cm
- Transformator:
- max. 630 kVA / max. 150 x 100 x 170 cm
- Middenspanningsschakelaar:
- max. 3 velden / 105 x 140 x 80 cm
- Laagspanningsverdeling:
- max. 55 x 140 x 40 cm / max. 6 NS-stroken
- Gewicht:
- Lichtbeton: 5,1 ton zonder elektrische uitrusting, 8,5 ton met elektrische uitrusting
- Hijsankers dak:
- 4 x RD 20
- Hijsankers Station:
- 4 x RD 42
*) Getest op boogontladingen of rapportage van uitgevoerde boogontladingstests mogelijk.

Dit zou je ook kunnen interesseren
Meer compacte stations




GKP-S3
Het milieubewuste SF6 loze concept van een universeel net- en overdrachtsstation voor maximaal 630 kVA trafovermogen.




HKP-E-Ü
Het perfecte overdrachtsstation met veel ruimte voor beveiligings- en telebesturingsapparatuur voor het »smart grid« van de toekomst.



