
Lichtbeton
Compactstation GBÜ-R3
Het krachtigste
GRÄPER-Compactstation
De GBÜ-R3 station is geclassificeerd conform NEN-EN-IEC62271-202 met IAC-AB-20kA/1s.
Geschikt voor uitrusting met transformatoren tot en met een vermogen van 3.150 kVA1 en schakelinstallaties met een hoogte tot ca. 1.90 m.
Van behuizing tot elektrotechnische inrichting: wij leveren het transformatorstation compleet en aansluit klaar, volledig in eigen beheer opgebouwd.
1Beschikbaar uitvoering 2026: 3150kVA/ 800V en 690V, 2500kVA/ 800V en 690V en 2000kVA/ 400V.
Specificaties
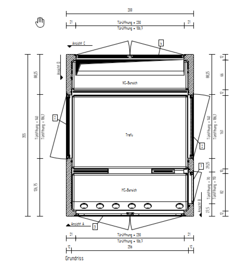
- Stationsafmetingen incl. ventilatie krans:
- L. 3,55 x B. 2,80 x H. 3,51 m.
- Stationsafmetingen excl. ventilatie krans:
- L. 3,55 x B. 2,80 x H. 2,97 m.
- Stationsafmetingen hoogte vanaf maaiveld niveau:
- L. 3,55 x B. 2,80 x H. 2,76 m
- Transformator:
- t/m 3.150 kVA/ max. H. 2,20 x B. 1,30 x D. 2,10 m
- Middenspanningsschakelaar:
- max. 6 velden/ H. 1,92 x B. 2,38 x D. 0,80 m
- Laadspanningsverdeling:
- max. H. 1,92 x B. 2,35 x D. 0,65 m/ max. 20 NH-patroonlastscheiderstroken.
- Meet-/Serviceruimte (optioneel):
- Ca. H. 1,20 x B. 0,70 x D. 0,30 m
- Gewicht:
- Lichtbeton: 10,7 t zonder elektrische uitrusting, ca. 24 t met elektrische uitrusting
- Hijsankers dak:
- 4 x RD 24
- Hijsankers station:
- 4 x RD 42
- Transport ankers:
- Lasibox
- Behuizingsklasse 3.150kVA met ventilatie krans:
- K15
- Vlamboogbestendigheid:
- conform NEN-EN-IEC62271-202 met IAC-AB-20kA/1s
*) Getest op vlamboogbestendigheid of mogelijk om de resultaten van uitgevoerde boogontladingstests op te vragen.

Dit zou je ook kunnen interesseren
Meer compacte stations



GKP-S3
Het milieubewuste SF6 loze concept van een universeel net- en overdrachtsstation voor maximaal 630 kVA trafovermogen.




HKP-E-Ü
Het perfecte overdrachtsstation met veel ruimte voor beveiligings- en telebesturingsapparatuur voor het »smart grid« van de toekomst.




