
Lichtbeton
Compactstation GKP S3
Het Compactstation
met beproefde SF6-gas vrije schakeltechniek
Vervaardigd uit normaal- of lichtbeton
Uitvoering conform NEN-EN-IEC 62271-202 (VDE 0670-202) en Kortsluitbeproefd met SF6 gas vrije MS-schakelinstallaties . (bijv. Siemens 8DJH24 blue GIS, Schneider Electric RM AirSeT)
Geschikt voor het opstellen van transformatoren tot 630/(800) kVA
Geheel geïnstalleerd en aansluit gereed afgeleverd op de bouwplaats
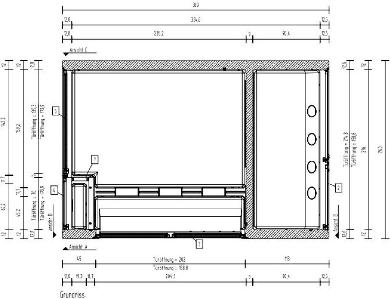
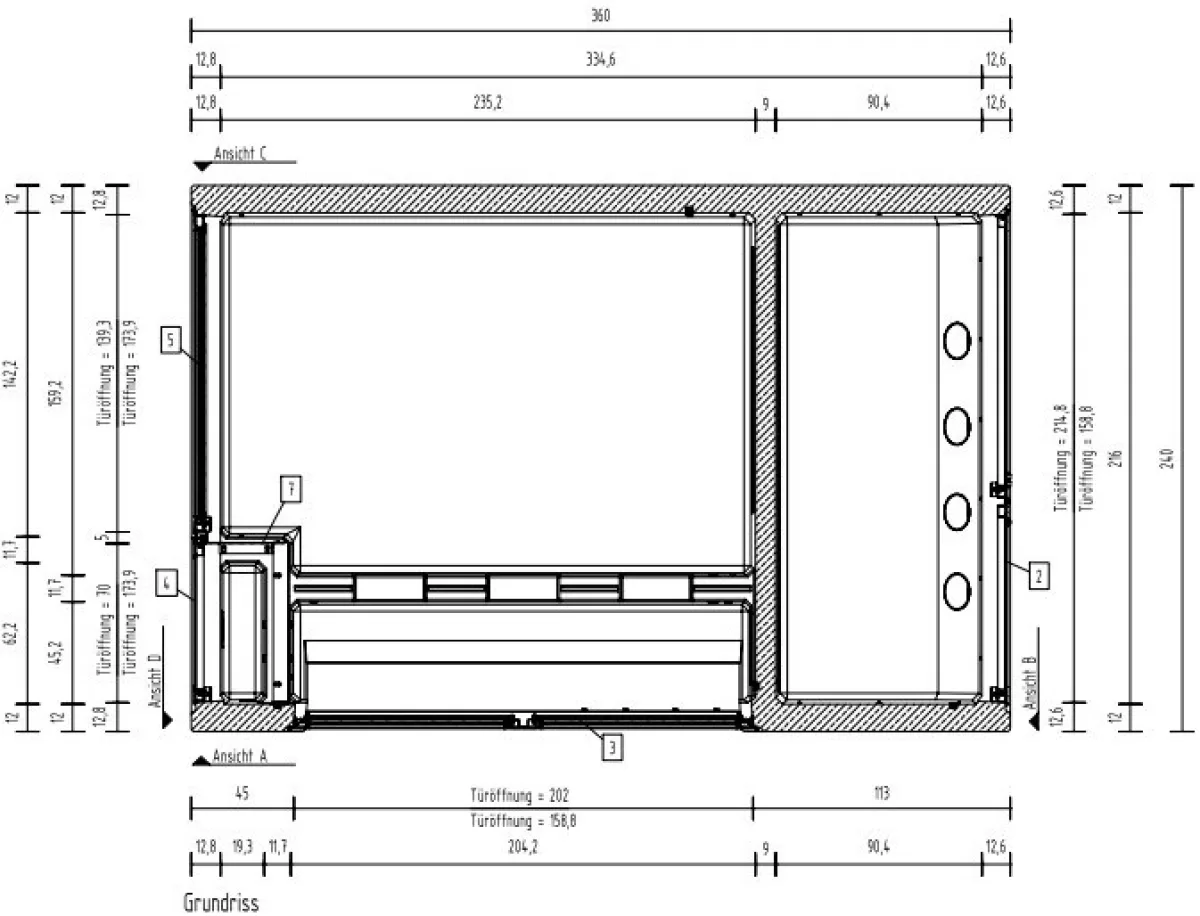
Specificaties
- Stationsafmetingen:
- L=285 x B=175 x H=250 cm
- Transformator:
- Max 630 kVA (evt 800 kVA max. afmetingen 170 x 110 x 190 cm.)
- Middenspanningsschakelaar:
- Max 4 velden (147 x 140 x 77 cm.)
- Laagspanningsverdeling:
- Max. 160 x 130 x 36 cm / max. 16 Laagspanningsvelden (DIN 2,3)
- Gewicht:
- Zichtbeton 6,9 ton leeg en ca. 10,1 ton met installatie
- Hijsankers dak:
- 4 x RD 42
- Hijsankers Station:
- 4 x SL 30
*) Getest op boogontladingen of rapportage van uitgevoerde boogontladingstests mogelijk.

Dit zou je ook kunnen interesseren
Meer compacte stations






