
Lichtbeton
Compactstation GKP S3
Het compactstation
met beproefde SF6-gas vrije schakeltechniek
Vervaardigd uit normaal- of lichtbeton
Uitvoering conform IEC 62271-202 (VDE 0670-202)
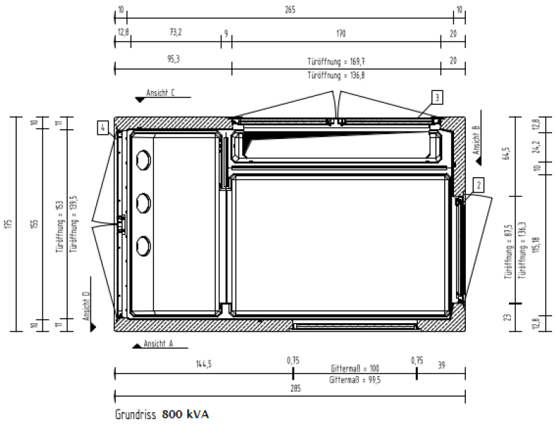
Geschikt voor het opstellen van transformatoren tot 630(800) kVA
Geheel geïnstalleerd en aansluit gereed afgeleverd op de bouwplaats
Specificaties
- Stationsafmetingen:
- 285 x 175 x 250 cm
- Transformator:
- Max 630 (800) kVA / max. 160 x 105 x 160 cm
- Middenspanningsschakelaar:
- Max 4 velden (140 x 140 x 80 cm)
- Laagspanningsverdeling:
- Max. 160 x 140 x 30 cm / max. 16 Laagspanningsvelden
- Gewicht:
- Lichtbeton 6,9 / 6,7 t leeg, 10,5 / 11,1 t met installatie
- Hijsankers dak:
- 4 x RD 20
- Hijsankers Station:
- 4 x RD 42
Download Klanttekening 630 kVA
Download Klanttekening 800 kVA
*) Getest op boogontladingen of rapportage van uitgevoerde boogontladingstests mogelijk.

Dit zou je ook kunnen interesseren
Meer compacte stations







HKP-E-Ü
Het perfecte overdrachtsstation met veel ruimte voor beveiligings- en telebesturingsapparatuur voor het »smart grid« van de toekomst.





