
Serienstation
270 x 310 cm Typ: G001
- Beginpagina
- Producten
- Prefab Stations
- Betreedbare Stations
- 270 cm × 310 cm
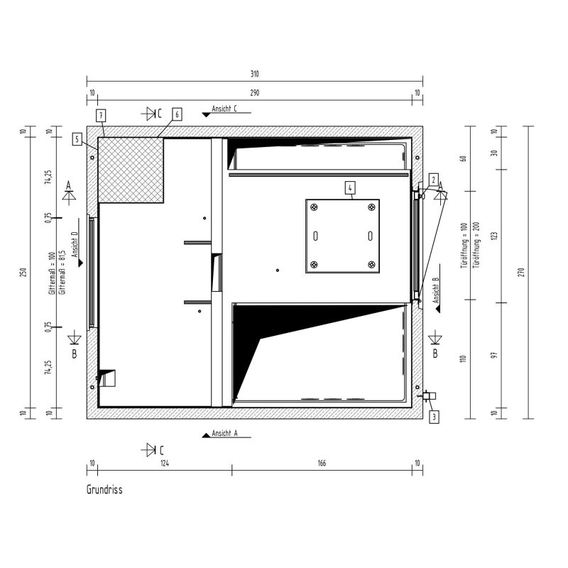
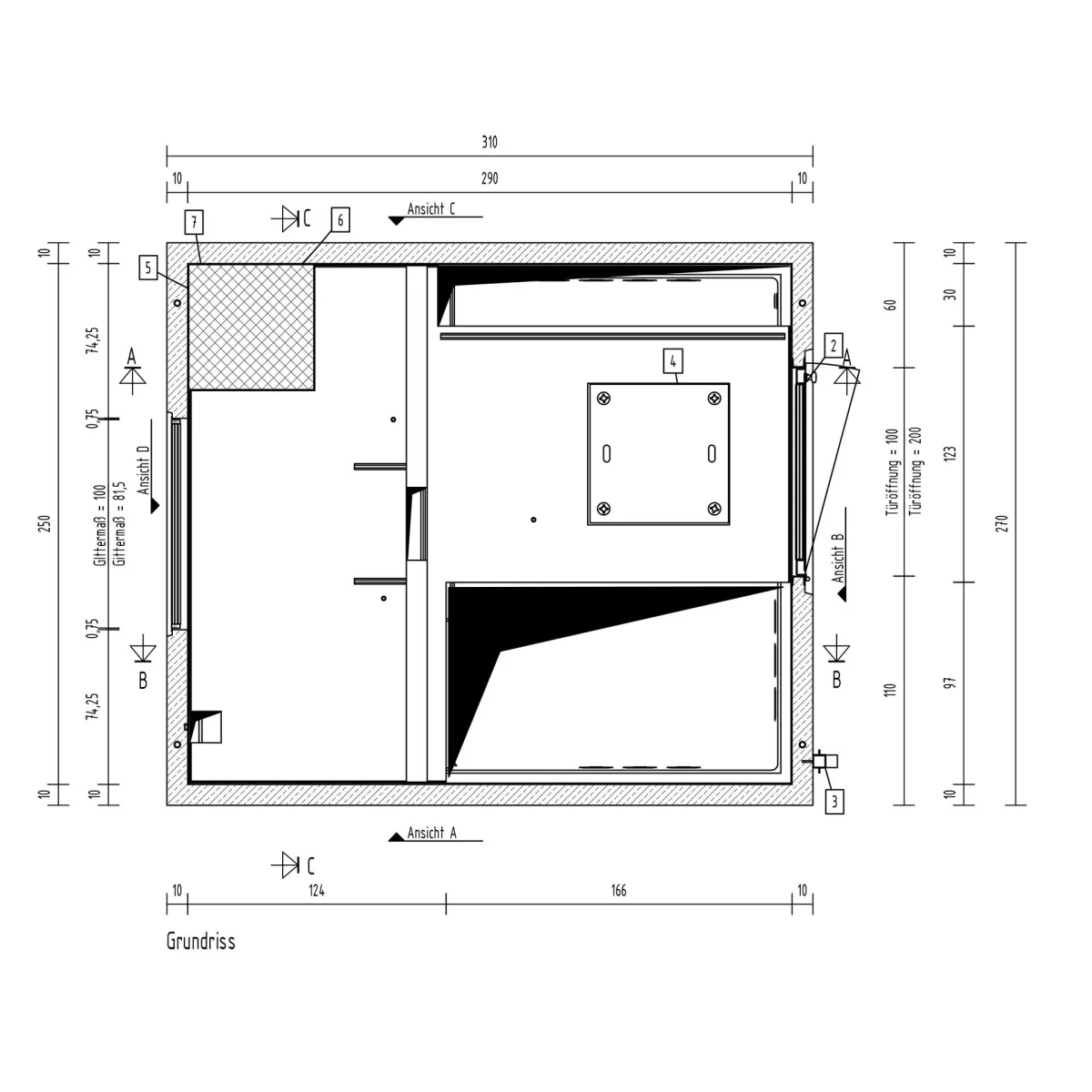
Begehbare Transformatorenstation mit einem Transformatorenraum bis max. 630 kVA und einer Mittelspannungsgröße bis max. 155 cm
Auf einen Blick
- Stationstyp:
- Transformatorenstation
- Stationsmaße:
- 310 x 270 x 325,7 cm
- Anzahl der Räume:
- 1
- Transformator:
- 1 Transformator bis 630 kVA / max. 160 x 95 x 175 cm
- MSA:
- max. 4 Felder / 155 x 250 x 80 cm
- NSHV:
- max. 160 x 200 x 40 cm / max. 15 NS-Leisten
- Anhebeanker Dach:
- 4 x RD 18
- Anhebeanker Station:
- 4 x 15 t KK
*) Störlichtbogengeprüft bzw. Ableitung von durchgeführten Störlichtbogenprüfungen möglich.


